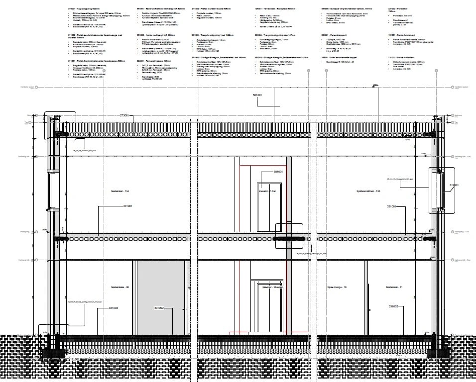
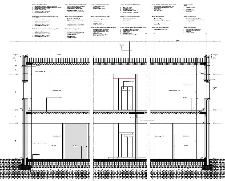
Tegnestue
Kumark tilbyder ikke kun byggerådgivning og tilsyn, men vi har også en tegnestue, hvor vi kan bistå med design og projektarbejde inden for forskellige områder.


Specialiseret
Vores tegnestue er specialiseret i at tegne og projektere enfamiliehuse, tilbygninger, ombygninger og renoveringer. Vi forstår vigtigheden af et godt design, der opfylder både dine behov og myndighedernes krav.
Bygningsreglement
Når vi arbejder med myndighedsprojektet, sørger vi for at udarbejde alle nødvendige dokumenter og tegninger, der er påkrævet for at opnå byggetilladelse. Dette omfatter tegninger, beskrivelser og eventuelle tekniske beregninger, der er nødvendige for at dokumentere projektets overensstemmelse med bygningsreglementet og andre gældende regler og standarder.


Dit projekt
Vi samarbejder tæt med dig for at sikre, at dine ønsker og behov bliver indarbejdet i projektet, samtidig med at vi overholder de relevante lovgivningsmæssige krav. Vores tegnestue er erfaren og velbevandret i at håndtere de nødvendige godkendelsesprocesser og kommunikere med myndighederne på dine vegne.
Vores mål
Vores mål er at levere et omfattende myndighedsprojekt, der opfylder alle krav og giver dig den nødvendige dokumentation til at starte byggeriet.

Book et møde
Kontakt Kumark i dag for at drøfte dine behov for tegning og projektarbejde inden for enfamiliehuse, tilbygninger, ombygninger og renoveringer. Vi ser frem til at hjælpe dig med at realisere dine byggeprojekters visioner og sikre en problemfri proces gennem alle faser af projektet.